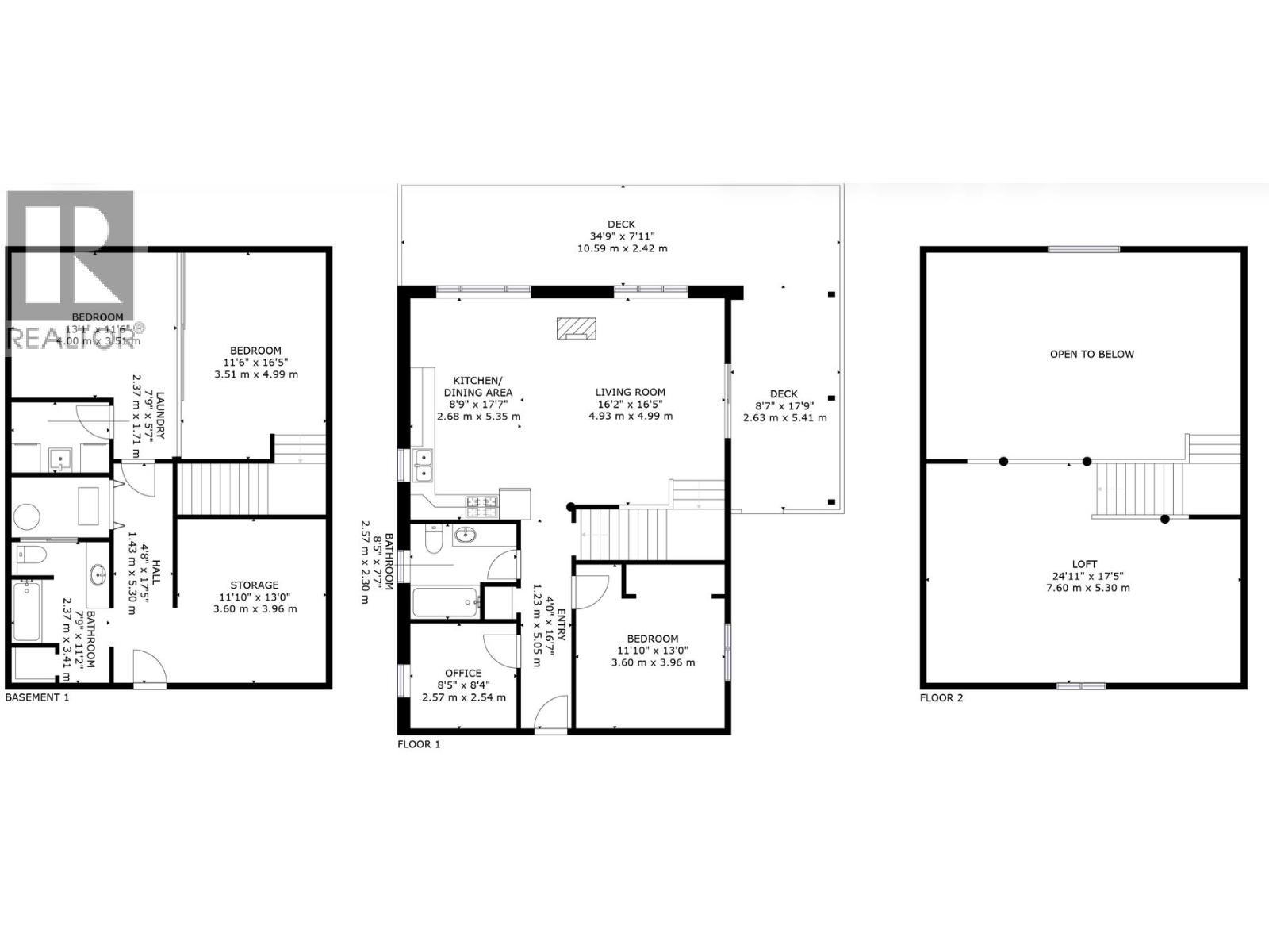
Discover 10.6 private acres on beautiful Lesser Fish Lake, complete with a 3-bedroom, 2 bath log home full of rustic charm and modern updates. Inside, you’ll find newer flooring, a fully renovated bathroom, a developed basement & a bright loft that adds extra living space or a cozy retreat. Perfect for a hobby farm, with pasture or potential hay field, with open land for gardens, animals, or simply enjoying the outdoors with crown land across the road to explore. Dip your toes or put in your boat from the approx 120 feet of shoreline. From the deck and windows, take in sweeping views of the lake while wildlife roams freely around you. This is a rare opportunity to enjoy both comfort and nature—a peaceful retreat where you can live, relax, and grow. Zoning even allows for a secondary home! (id:4069)
Address
7742 N BRIDGE LAKE ROAD
List Price
$785,000
Property Type
Single Family
Type of Dwelling
Single Family
Transaction Type
Sale
Area
British Columbia
Sub-Area
Bridge Lake
Bedrooms
1
Bathrooms
2
Floor Area
2,380 Sq. Ft.
Lot Size
10.6 Ac.
Year Built
1985
MLS® Number
R3078075
Listing Brokerage
eXp Realty (100 Mile)
Basement Area
Full
Postal Code
V0K1X2
Site Influences
Waterfront





























