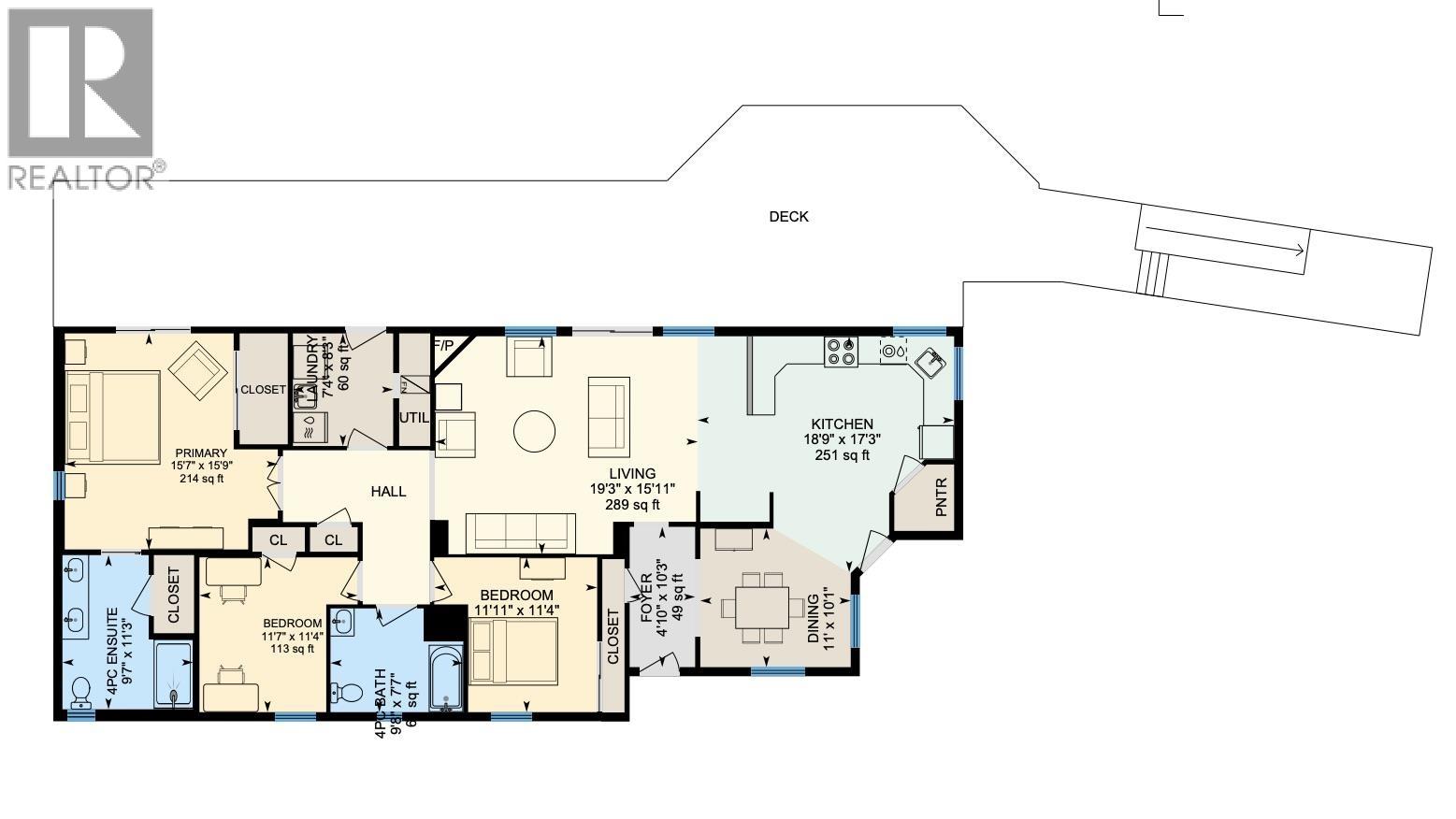
Private Waterfront Retreat on Lac La Hache Tucked away at the end of a quiet street, this 2.7-acre waterfront property offers over 450 feet of shoreline and the privacy you’ve been searching for. The charming 3-bedroom, 2-bath rancher-style home is wheelchair-friendly and seamlessly connected by a large deck to a stunning 1,400 sq ft detached studio complete with its own kitchen and bathroom, ideal for guests, extended family, or a potential second residence. A massive 45x28 shop provides room for all your projects and toys, with a separate workshop, wood shed, and dock already in place. Park-like yard, additional features throughout—too many to list! (id:4069)
Address
4574 CAVERLY ROAD
List Price
$1,190,000
Property Type
Single Family
Type of Dwelling
Single Family
Style of Home
Ranch
Transaction Type
Sale
Area
British Columbia
Sub-Area
Lac La Hache
Bedrooms
3
Bathrooms
3
Floor Area
1,765 Sq. Ft.
Lot Size
2.7 Ac.
Year Built
2006
MLS® Number
R3096452
Listing Brokerage
RE/MAX 100
Basement Area
Crawl space
Postal Code
V0K1T0
Site Influences
Waterfront, View







































