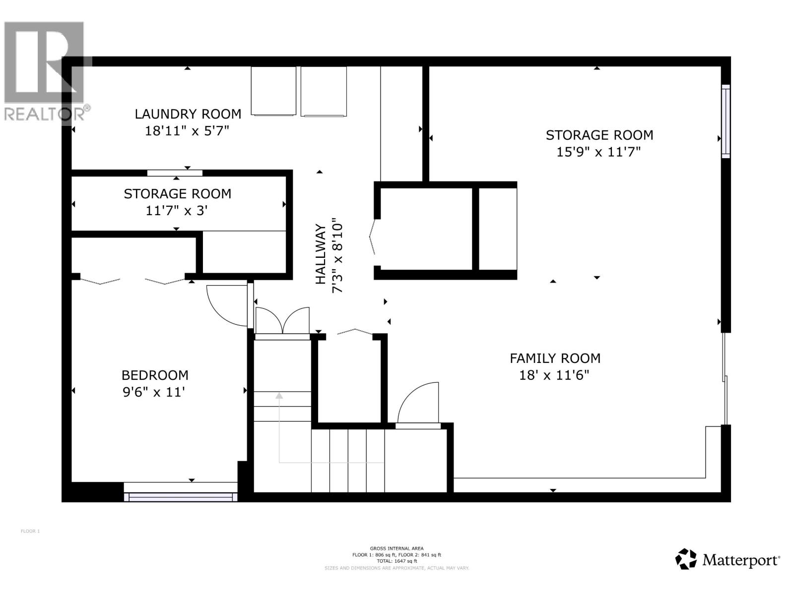
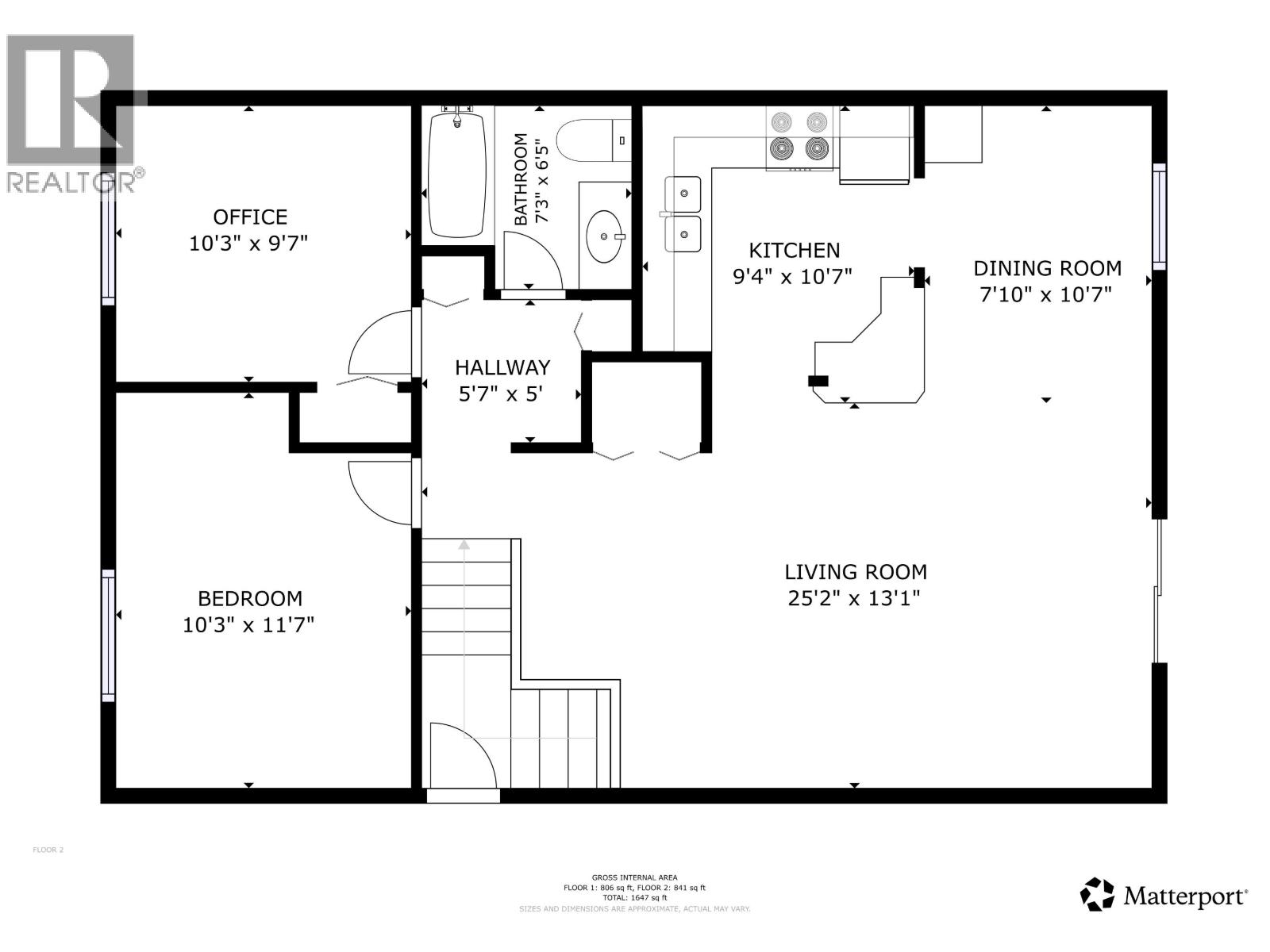
Affordable, private, and conveniently located in town. This 3-bedroom half duplex offers a practical multi-level layout with several recent updates already completed. Enjoy west-facing exposure with warm afternoon sunshine and pleasant views across the neighbourhood from the main living areas. Tucked into a quiet setting yet within walking distance to shopping, services, and the elementary school. A great opportunity for first-time buyers, young families, or investors looking for budget-friendly living in 100 Mile House. (id:4069)
Address
238 ELM AVENUE
List Price
$325,000
Property Type
Single Family
Type of Dwelling
Single Family
Style of Home
Split level entry
Transaction Type
Sale
Area
British Columbia
Sub-Area
100 Mile House
Bedrooms
3
Bathrooms
1
Floor Area
1,663 Sq. Ft.
Lot Size
0.2 Ac.
Year Built
1976
MLS® Number
R3100324
Listing Brokerage
RE/MAX 100
Basement Area
N/A (Finished)
Postal Code
V0K2E0
Site Influences
View































